Access
Residents can access the space 24/7.
CoWork Altea is currently offered only for long-term rentals of at least 1 month. Short-term use is not available.

Flexible coworking in Altea
Hot desks, private offices and meeting spaces built for focused work.
CoWork Altea offers flexible workstations, private offices, meeting and event spaces, guided visits and practical day-to-day amenities in one place.
At a glance
Access
Residents can access the space 24/7.
Internet
1 GB high-speed internet for calls and deep work.
Parking
Large free car park directly in front of the building.
Visits
Reception is by appointment only; guided tours are free.
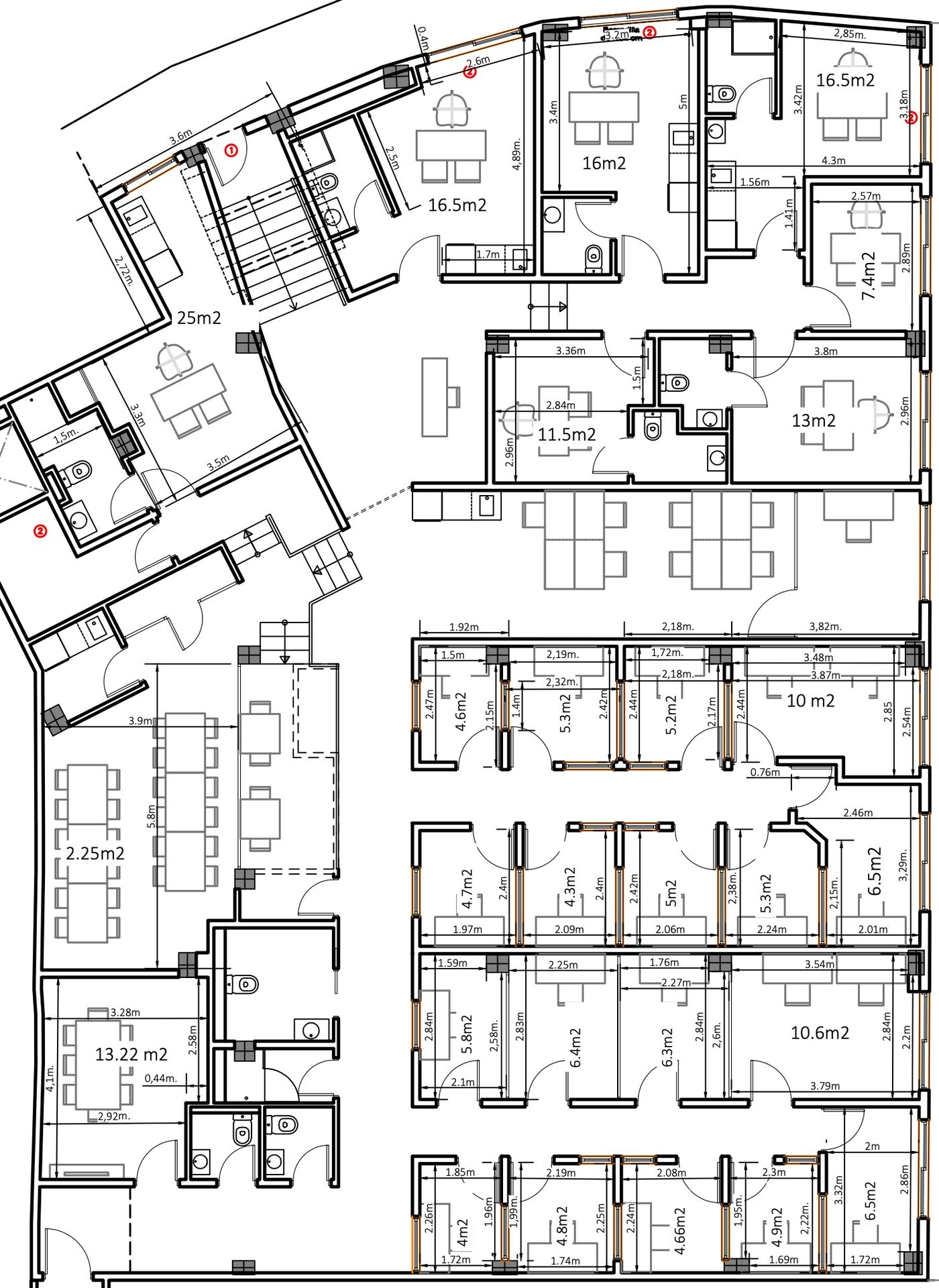
See the layout before you visit
These two reference visuals help you understand how the offices, common areas and access points are arranged before your guided visit.
A full view of the cowork layout so you can see the overall distribution of work areas and circulation.

A numbered overview that makes it easier to identify the different spaces while you review the place with the team.

Spaces and services
Plans start with simple monthly subscriptions and scale up to private space when you need more privacy or room for clients.
100 EUR / month
Monthly access to a shared desk when you need a simple, professional place to work without taking a private office.
Ideal for freelancers and remote workers who want a professional base without taking a private office.
From 250 EUR / month
Private offices for one person, two people or small teams, available for monthly rentals and longer arrangements confirmed directly with Almorada.
Best for client-facing work, quiet focus, or teams that need a more controlled setup.
135 EUR / 3 months
Business address and administrative support for companies that do not need a permanent physical workspace every day.
Plan Basic shown here for a 3-month term.
Included in subscriptions
A professional room with audiovisual tools and a whiteboard, available to book for client meetings, internal sessions or presentations. Residents and day users receive booking credits.
Included in subscriptions
A flexible room for workshops, talks and small events, with a large monitor and whiteboard for professional presentations and group sessions.
Use is coordinated directly with the team depending on setup and availability.
Included in subscriptions
Secure storage and a dedicated mailing address for members who need to keep belongings or receive correspondence.
Included in subscriptions
Private enclosed spots for video calls, virtual meetings or any conversation that should not happen from an open desk.
On request
Dedicated technical help and custom software support are available when your project needs more than desk space.
Why people choose CoWork Altea
Everything is designed to remove friction from the workday: access, connectivity, practical amenities and room to meet clients.
Monthly members with a hot desk or private office setup can access the coworking space any time, day or night.
Technical help is part of the positioning of the space, alongside optional web or software support for resident businesses.
Members can use a stocked kitchen with fridge, microwave, utensils and water filtration, plus unlimited hot drinks through the day.
Fast reliable connectivity supports video calls, software development and other demanding work without interruption.
A reservable meeting room is available for anyone, while residents and day users receive credits to use it at no extra cost.
The event setup supports workshops, presentations, networking and other small-format gatherings in the same building.
Modern printing and scanning equipment is available for document-heavy work that still needs paper handling.
Daily users and members can arrive by different transport modes, and the site explicitly listed a shower among the on-site amenities.
A large free car park sits directly in front of the building, removing one of the biggest friction points for local users.
Frequently asked
Quick answers before your first visit.

How to move forward
If you want to work from the space, visit it first, explain what you need, and confirm the current setup directly with the team.
Walk through the space, compare desk and office types, and clarify conditions before choosing your setup.
Current availability and long-stay terms are confirmed directly by phone, email or WhatsApp.